Gorenje Showcase House

A mobile experience space designed to bring innovation on the road.

A fully off-grid, road-ready showroom built to demonstrate Gorenje appliances at fairs and events across Europe.

Bringing a Brand to Life on Wheels

Gorenje wanted more than a booth, they wanted an experience.
A space where people could step inside, cook, touch, and feel the quality of their appliances firsthand.
They approached us to design a fully mobile showroom that reflects the brand’s modern aesthetics while being self-sufficient, transportable, and visually unforgettable.

The Challenge

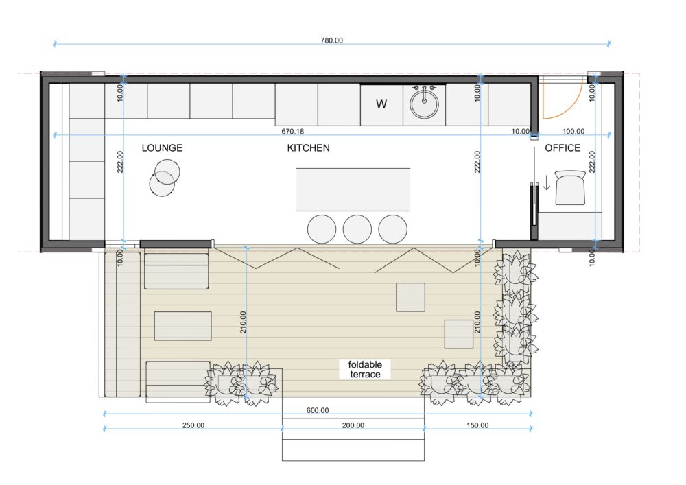
The client requested the largest house possible without a second floor, with a full-length openable front façade and a spacious foldable terrace — all built for transport on a road-legal trailer.
The interior needed to host a complete functional kitchen with eight major appliances, plus storage, seating, a movable island, and full off-grid independence.
The result had to be elegant enough for a brand showcase, yet engineered to survive continuous setup and teardown at events.

Key Features

    • Custom-designed modern architecture — inspired by our Saturn line.
    • 4 m wide accordion door opening the entire front wall.
    • 6 m × 2 m foldable terrace for public events.
    • State-of-the-art off-grid system: 7 solar panels, 15 kWh LiFePO4 battery bank, 20 kW inverter.
    • Integrated water supply and drainage systems.
    • Movable kitchen island with induction top — space-saving for transport, open for demos.
    • Finished in 3 months from order to delivery.
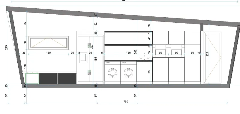
  • Custom-built kitchen for:
    • 2 ovens
    • 1 induction plate
    • 1 dishwasher
    • 2 fridges with freezer
    • 1 washing machine
    • 1 dryer

Made for Interaction

Visitors don’t just look — they cook.
The open-plan interior invites people in with natural light and warm materials, while Gorenje’s team demonstrates their appliances in action.
From the folding terrace to the neon “Life Simplified” sign, every element was designed to create connection between brand and audience.

From Workshop to Roadshow

Since delivery, the Gorenje showcase house has been on tour appearing at expos, fairs, and promotional events across Germany.
It stands as one of the most technically advanced and visually distinctive mobile showrooms in Europe, and a benchmark of how modern brands can connect with people, one house at a time.

See it in action

See the Gorenje Showcase House in action and during construction:

Have a brand, resort, or business idea that needs its own mobile space?

We design and build custom solutions from concept to road-ready delivery.